
DraftSight’ta AutoLisp Komutlarını Çalıştırma
AutoLISP, DraftSight gibi CAD yazılımlarında kullanıcıların çizim süreçlerini otomatikleştirmelerine, kişiselleştirmelerine ve genişletmelerine olanak tanıyan bir programlama dilidir. Autolisp ile sık…
AutoLISP, DraftSight gibi CAD yazılımlarında kullanıcıların çizim süreçlerini otomatikleştirmelerine, kişiselleştirmelerine ve genişletmelerine olanak tanıyan bir programlama dilidir. Autolisp ile sık…
Lisans borrowlama işlemi için aşağıdaki işlem adımlarını uygulayabilirsiniz. 1 . Windows başlat menüsünden SolidNetwork License Manager Client uygulamasını yönetici olarak…
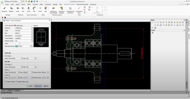
DraftSight, mühendislik ve tasarım profesyonelleri için güçlü ve kapsamlı bir CAD yazılımıdır. DraftSight Mechanical, CAD yazılımı DraftSight’ın, özellikle mekanik mühendisler…
DraftSight, profesyonel kullanıcılar ve büyük ölçekli kuruluşlar için tasarlanmış, kapsamlı ve güçlü bir CAD yazılımıdır. Bu ürün, teknik çizimlerin ve…
DraftSight üzerinde çizim yaparken komut pencereniz kayboldu ve geri alamıyor musunuz? Resimde komut penceresinin kapalı olduğunu görebiliyorsunuz. CTRL+9 kısa yoluna…
DraftSight, kullanıcıların 2D CAD çizimlerini oluşturmasına, düzenlemesine ve görüntülemesine olanak tanıyan güçlü bir yazılımdır. DraftSight, CAD dosyalarıyla çalışırken çeşitli yararlı…
DraftSight ürünleri ile iki boyutlu ve üç boyutlu tasarımlar oluşturabilirsiniz. Bu tasarım süreçlerinizi tablo verileri ile destekleyebilir ve verilerinizi kontrol…
DraftSight, hızlı ve etkili komut girişine olanak tanıyan birçok özellik sunar. Bu özelliklerden biri de F12 kısayolu ile hızlı giriş…






